Beschikbaar
6815 hg Arnhem

Berliozstraat 12

€ 525.000 k.k.
Over deze woning
Snel naar

In het kort

  • Perceel 238 m²
  • Woning 162 m²
  • Kamers 6
  • Energielabel C
Wat worden mijn maandlasten?
Hypotheekadvies

Omschrijving

In de gewilde wijk ’t Cranevelt bieden wij deze ruime en geschakelde twee-onder-één-kap woning met inpandige garage en een zonnige tuin aan. Deze woning is gelegen op een steenworpafstand van Koninklijke Burgers’ Zoo, buurtwinkels voor de dagelijkse boodschappen, uitvalswegen en uitgestrekte bossen Arnhem aan.

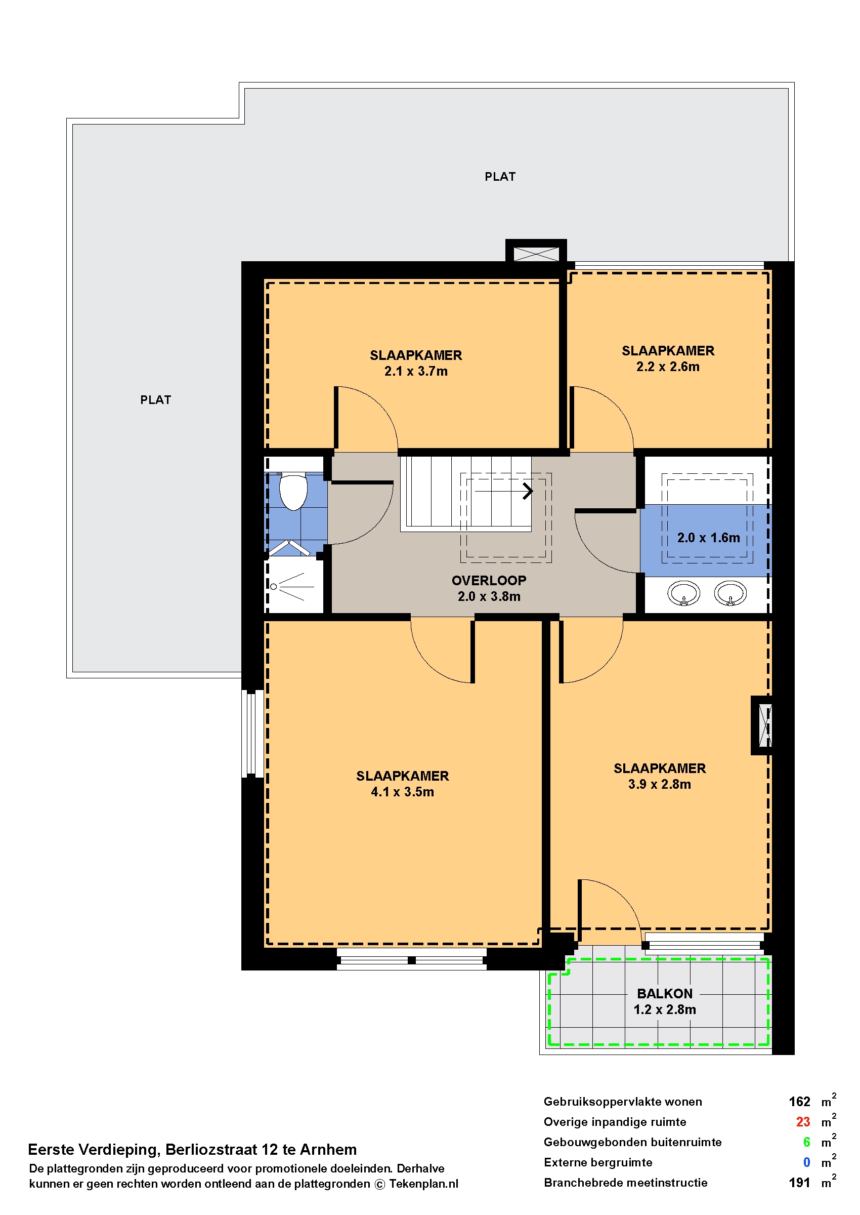
Deze ideale gezinswoning is gebouwd in 1960 en biedt een royale L-vormige woonkamer, een halfopen keuken met bijkeuken, alsmede een tuinkamer/serre. Op de eerste verdieping bevinden zich 4 slaapkamers en 2 badkamers, het souterrain omvat naast de garage en berging nog een hobbyruimte met sauna.

De woning heeft een woonoppervlakte van 162 m² en een inpandige garage en berging van 23 m². Het perceel is 238 m² groot. De woning heeft een energielabel C, geldig tot september 2035.

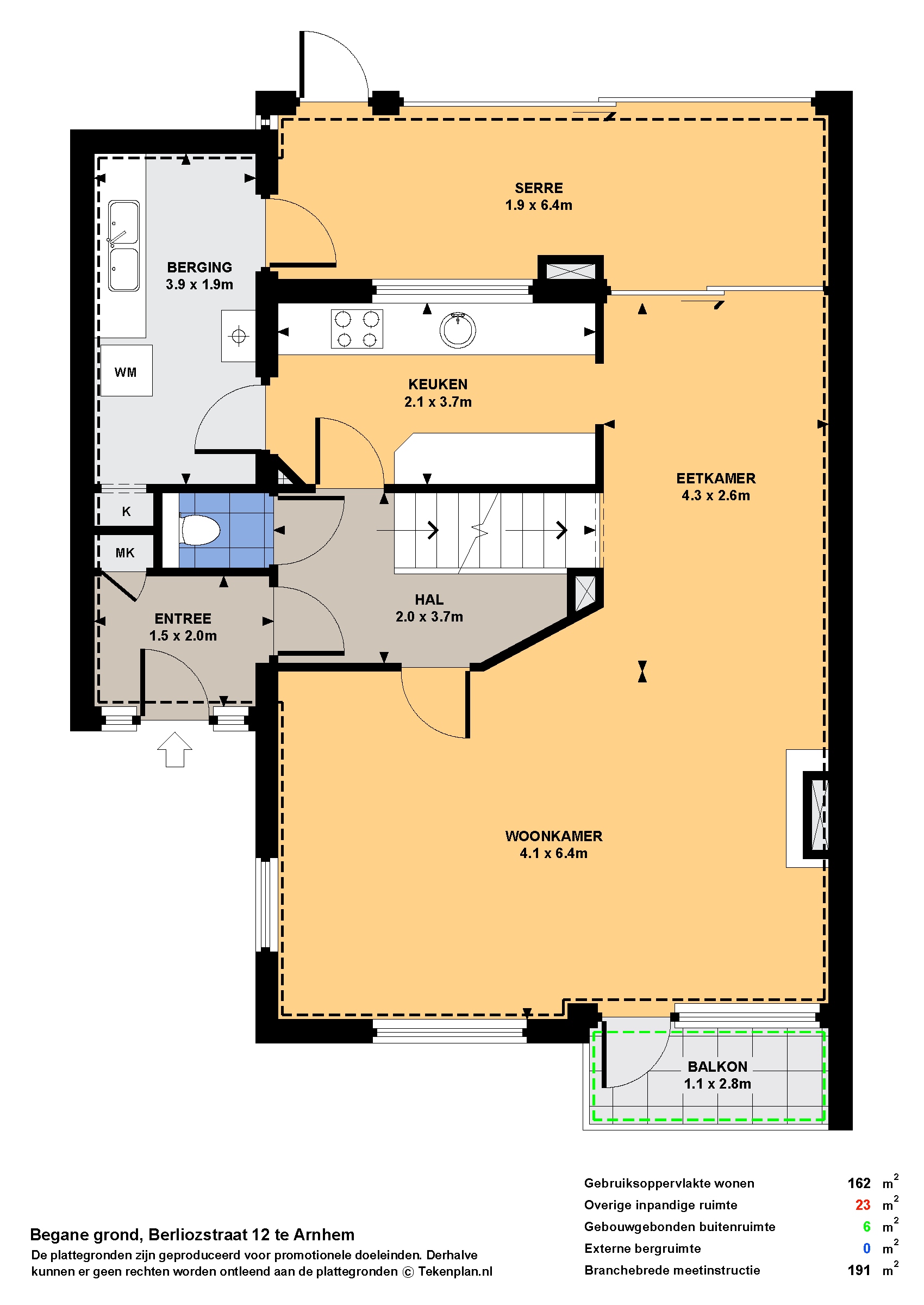
Indeling:
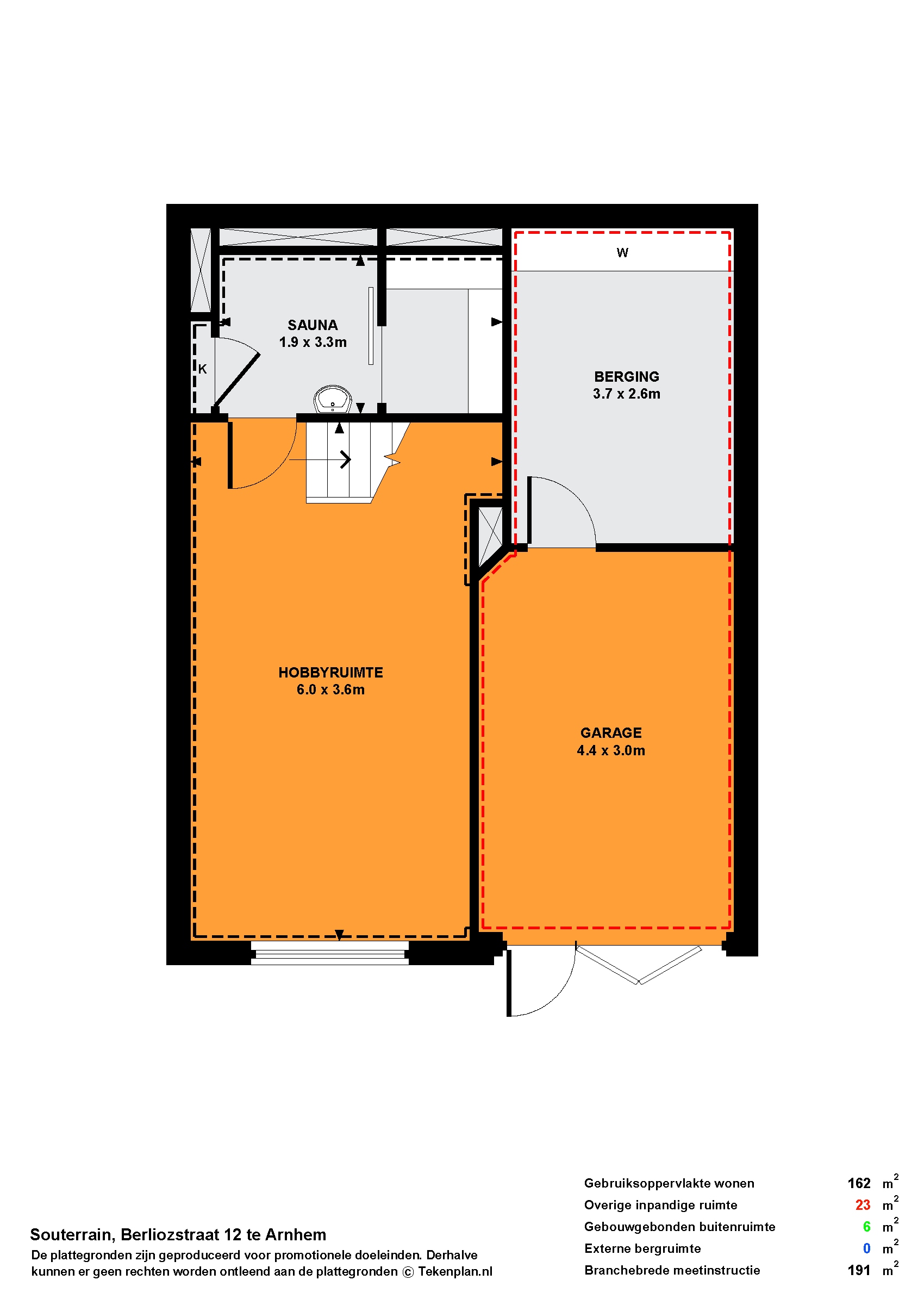
Onderverdieping: Garage met doorloop naar de berging, grote hobby- of werkkamer, saunaruimte.

Begane grond: Entree/tochtportaal met meterkast, hal met trap naar de 1e verdieping en naar het souterrain, toilet, L-vormige woonkamer met schouw en doorloop naar balkon op het zuidwesten, half open keuken voorzien van apparatuur, doorloop naar de bijkeuken met aansluitingen voor de wasmachine en/of droger. De serre is via de woonkamer en bijkeuken te bereiken.
De achtertuin van 72 m² is gelegen op het Noordoosten en heeft een achterom.

Eerste verdieping: Overloop met toegang tot de 4 slaapkamers (waarvan 1 met balkon), badkamer met ligbad en dubbele wastafel, 2e badkamer met toilet en douchecabine.

Bijzonderheden:
– Groene woonomgeving;
– Eigen parkeerplaats op oprit;
– Uitstekende bereikbaarheid;
– Rustige straat;
– Zonnige tuin;
– De ouderdomsclausule en niet bewonersclausule worden in de koopakte opgenomen;
– Oplevering in de staat waarin deze zich bevindt (as is-where is clausule)
– Aanvaarding kan op korte termijn.

Lees meer Lees minder

Kenmerken

  • Status Beschikbaar
  • Bouwvorm Bestaande bouw
  • Vraagprijs € 525.000,- k.k.
  • Soort object Woonhuis
  • Perceeloppervlakte 238 m²
  • Woonoppervlakte 162 m²
  • Aantal kamers 6
  • Plaats Arnhem
  • Ligginskenmerken Aan bosrand, aan rustige weg, in woonwijk, beschutte ligging, in bosrijke omgeving
  • Bouwjaar 1960
  • Aantal slaapkamers 4
  • Aantal badkamers 3
  • Badkamer voorzieningen Douche, wastafel, sauna, toilet, douche, ligbad, dubbele wastafel
  • Verdiepingen 3
  • Daktype Plat dak
Alle kenmerken Lees minder
Over deze woning
Rob Kranen

Beëdigd NVM-makelaar en taxateur

Gratis zoekopdracht
Gratis zoekopdracht
Stel een vraag

In de buurt

      Weet wat je verkoopt,
      doe een gratis waardebepaling!

      Rob Kranen

      Beëdigd NVM-makelaar en taxateur

      Gratis zoekopdracht
      Gratis zoekopdracht
      Download de brochure Stel ons vraag
      9 .3 Beoordeling Lees meer
      Een afspraak plannen

      "*" geeft vereiste velden aan

      Stel een vraag

      Vul onderstaand formulier in

      "*" geeft vereiste velden aan