Beschikbaar
6821 jt Arnhem

Braamweg 74

€ 895.000 k.k.
Over deze woning
Snel naar

In het kort

  • Kamers 5
  • Energielabel A
Wat worden mijn maandlasten?
Hypotheekadvies

Omschrijving

UNIEK, MODERN, MONUMENTAAL EN INSTAPKLAAR!
Ben je op zoek naar een bijzondere woning op één van de mooiste plekken van Arnhem? Kom dan zeker kijken op de Braamweg 74. Zo’n woning komt zelden te koop!

Deze woning maakt onderdeel uit van het Paleis op de Heuvel, een zeer passende naam voor dit bijzondere woongebouw in het voormalig schoolgebouw uit de jaren ’30 van de vorige eeuw. In 2016 is deze zeer royale woning van maar liefst 184 m² gerealiseerd in de kleedkamers van de voormalige gymzaal.

De eerste eigenaren hebben samen met een architect een woonruimte gerealiseerd die volledig recht doet aan het originele karakter van het Rijksmonumentale gebouw met oog voor de unieke zichtlijnen vanuit de woning. De indeling voelt ruimtelijk en modern aan. De woning is voorzien van dubbel glas, muur- en dakisolatie. De woning heeft een energielabel A, geldig tot december 2035.

De woning maakt deel uit van een actieve VvE. De servicekosten bedragen € 326,66 per maand.

De ligging is perfect! Het uitzicht vanuit de woning op de groene velden en het ‘ronde bosje’ is uniek. Daarnaast loop je zo naar het Sonsbeekpark, Park Klarenbeek of het centrum van Arnhem. Ook is een gemeenschappelijke tuin aanwezig waar meerdere sociale activiteiten worden georganiseerd. Daarnaast kan dagelijks met het gezin of met de buren van een heerlijk hapje en drankje worden genoten aan één van de drie gemeenschappelijke tafels in de tuin.

Via de hoofdentree kom je in de gemeenschappelijke hal van dit oude schoolgebouw. Via een prachtige gang met originele tegelvloer loop je naar je voordeur van deze woning. Onderweg kan je bijna nog het rumoer van de leerlingen horen, alle originele elementen van het oude schoolgebouw zijn nog aanwezig.

Indeling woning:

Entree, werk-/speelkamer met een fantastisch hoog plafond van bijna 8 meter en een wenteltrap naar de 1e verdieping. Verder heb je hier een garderoberuimte en een modern toilet met fontein.

Via een glazen deur kom je in de royale woonkeuken uit 2016. Deze keuken is voorzien van een kookeiland met bar, 5-pits gaskookplaat met afzuigkap, een afwasmachine, 2 koelkasten, een vriezer, een combimagnetron, een tweede oven en veel kastruimte.

Doorloop naar de ruime woonkamer met een speel- of werkhoek en openslaande deuren naar het deels overdekte terras met vrij uitzicht over het tegenover gelegen groene natuurterrein. Het overdekte terras is een heerlijke plek en één van de grote voordelen van deze woning.

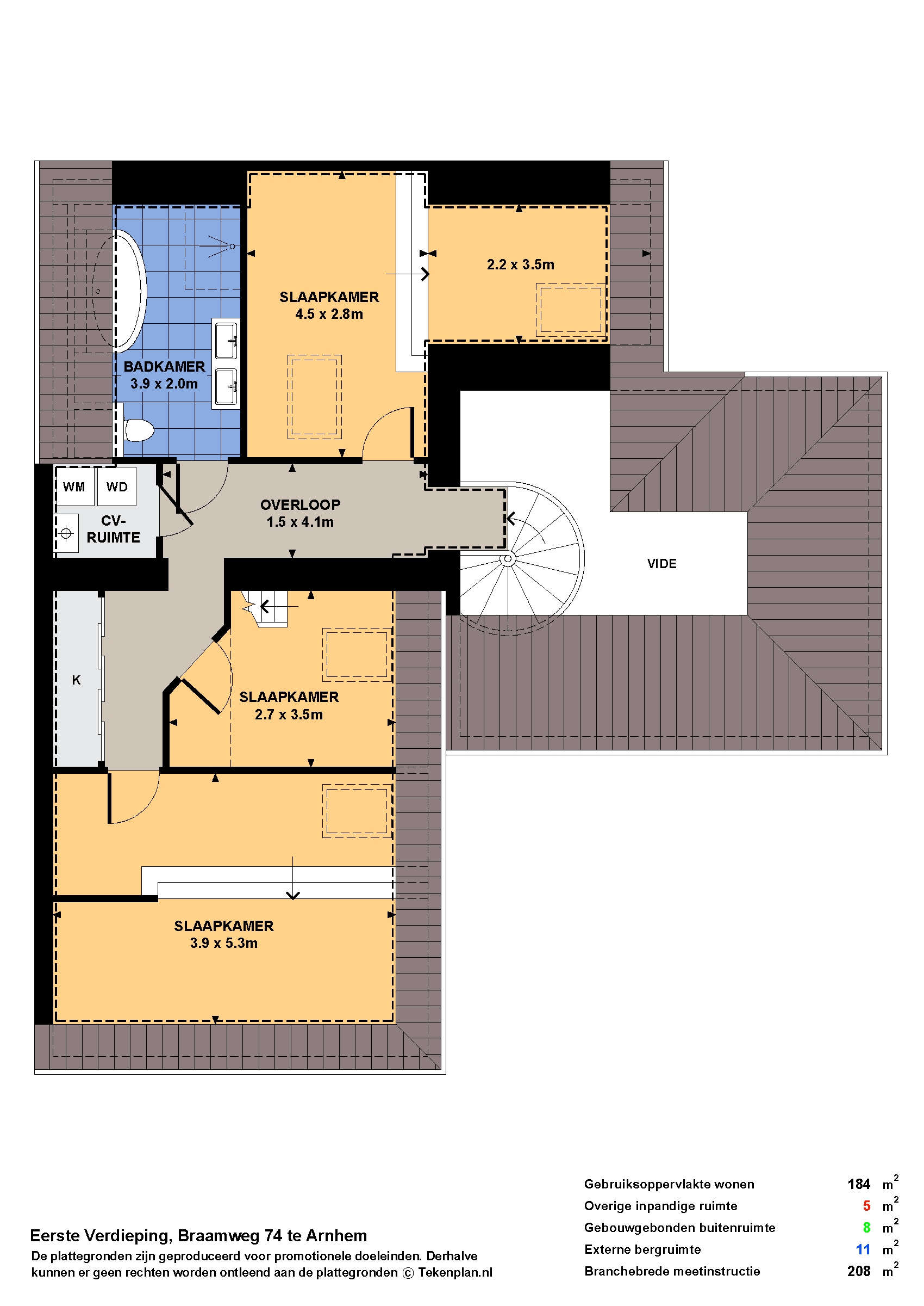
Via de wenteltrap kom je op de 1e verdieping met een overloop met vaste kastenwand, een c.v. ruimte met aansluitingen voor de wasmachine en droger, een ruime ouderslaapkamer waar het bed op een verhoging is geplaatst. De mooie dakspanten vallen direct op, een 2e slaapkamer met een unieke slaapzolder, een 3e royale slaapkamer met een design inbouwkast.

De moderne badkamer is geplaatst in 2016 en is voorzien van een ligbad, inloopdouche, wastafelmeubel met dubbele wastafel, designradiator, vloerverwarming en een 2e toilet.

De separate en ruime berging bij deze woning is gelegen in de kelder van het tegenover gelegen nieuwbouwcomplex. Hier is ook een gemeenschappelijke fietsenberging met fietslift aanwezig. Naast de voordeur van de woning is, geheel in stijl van het schoolgebouw, een lockerkast geplaatst voor wat extra opslag nabij de woning.

Parkeren kan op het gemeenschappelijke terrein. Ook in de directe omgeving is voldoende (gratis) parkeergelegenheid, ook een tweede auto is nabij de woning te parkeren. Werkelijk uniek voor een locatie zo dicht bij het centrum!

Lees meer Lees minder

Kenmerken

  • Status Beschikbaar
  • Bouwvorm Bestaande bouw
  • Vraagprijs € 895.000,- k.k.
  • Soort object Woonhuis
  • Woonoppervlakte 184 m²
  • Aantal kamers 5
  • Plaats Arnhem
  • Ligginskenmerken Aan park, aan rustige weg, in woonwijk, vrij uitzicht
  • Bouwjaar 1932
  • Isolatie Volledig geisoleerd
  • Aantal slaapkamers 3
  • Aantal badkamers 1
  • Badkamer voorzieningen Ligbad, toilet, dubbele wastafel, wastafelmeubel, inloopdouche
  • Verdiepingen 2
  • Voorzieningen Mechanische ventilatie, tv kabel, dakraam
  • Daktype Zadeldak
Alle kenmerken Lees minder
Over deze woning
Rob Kranen

Beëdigd NVM-makelaar en taxateur

Gratis zoekopdracht
Gratis zoekopdracht
Stel een vraag

In de buurt

      Weet wat je verkoopt,
      doe een gratis waardebepaling!

      Rob Kranen

      Beëdigd NVM-makelaar en taxateur

      Gratis zoekopdracht
      Gratis zoekopdracht
      Download de brochure Stel ons vraag
      9 .3 Beoordeling Lees meer
      Een afspraak plannen

      "*" geeft vereiste velden aan

      Stel een vraag

      Vul onderstaand formulier in

      "*" geeft vereiste velden aan