Beschikbaar
6821 lw Arnhem

Hommelseweg 384

€ 369.000 k.k.
Over deze woning
Snel naar

In het kort

  • Kamers 3
  • Energielabel D
Wat worden mijn maandlasten?
Hypotheekadvies

Omschrijving

In het geliefde Sonsbeekkwartier, op loopafstand van buurtwinkels, horeca, het gezellige centrum, het monumentale Sonsbeekpark en uitvalswegen gelegen, ruime bovenwoning met een balkon en separate berging.

De woning, gebouwd in 1933, had origineel 6 kamers, wat eenvoudig kan worden hersteld en is voorzien van diverse originele details, waaronder natuurstenen schouwen, stucwerk plafonds, roeden verdeling in de ramen en paneeldeuren.
Zoek je een karakteristieke woning die je helemaal naar eigen wens kunt moderniseren? Neem dan zeker contact met ons op. Er zijn verschillende ruime subsidieregelingen, die het verduurzamen zeer aantrekkelijk maken.

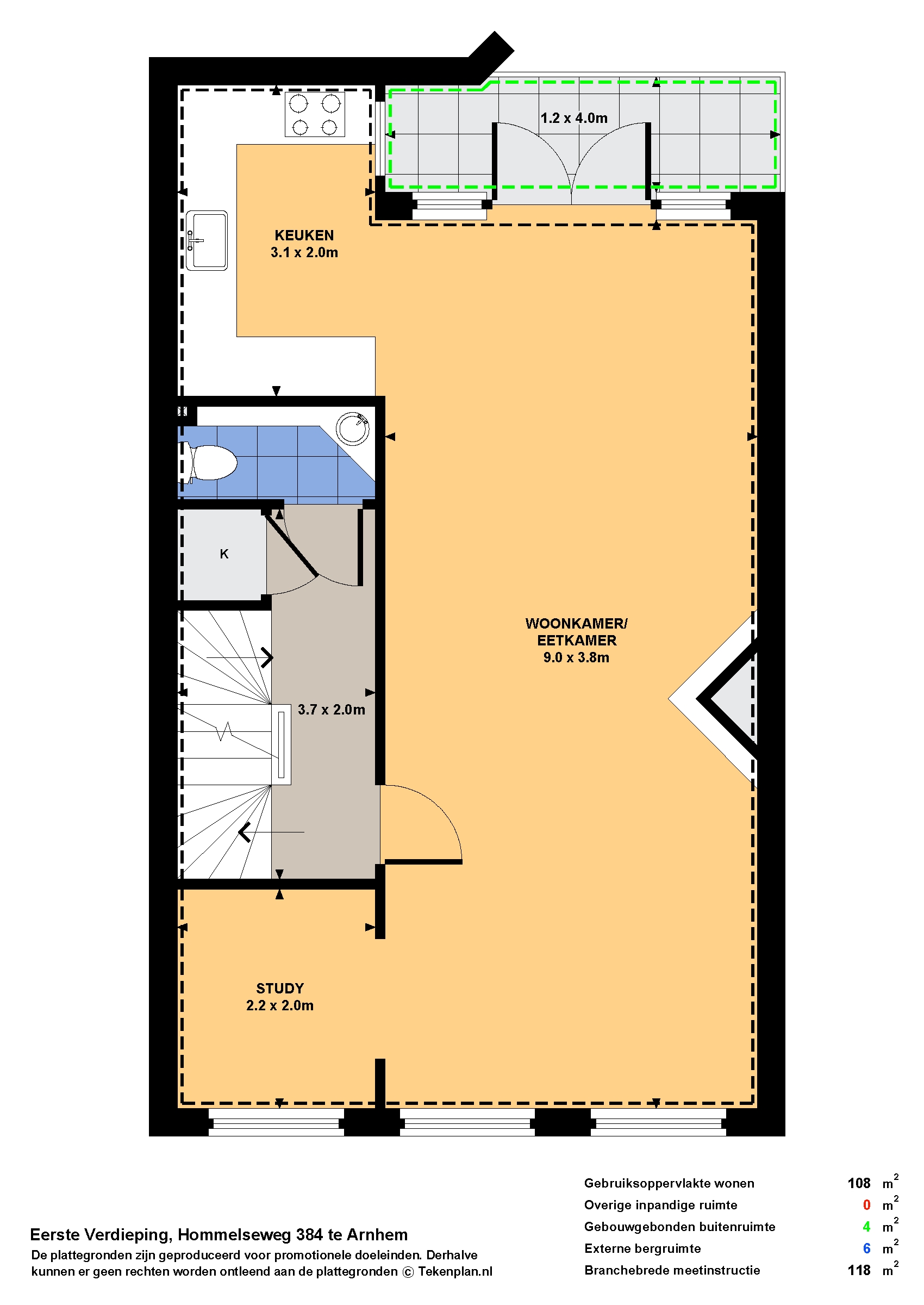
De woonoppervlakte is 108 m².
De woning heeft een energielabel D, geldig tot december 2035.
Deze woning komt in aanmerking voor de SEWA-subsidie. Een hoge subsidie via de gemeente Arnhem om de woning te verduurzamen. Kjk voor meer informatie op https://www.arnhem.nl/product/subsidie-eigen-woning-aanpak-sewa/

Indeling:
Begane grond: entree; hal voorzien van meterkast, trap naar de 1e verdieping.

1e verdieping:
Hal met ruime bergkast, toilet met fontein, royale L-vormige woonkamer met mooie authentieke schouwen, openslaande deuren naar het balkon, doorloop naar de keuken voorzien van gaskookplaat, afzuigkap en combi-oven.

2e verdieping: De overloop heeft een 2e toilet met opstelplaats voor de c.v. ketel. De zeer grote slaap- of werk kamer aan de voorzijde (voormalig 2 kamers) met panoramaview over het sonsbeekkwartier heeft een pantry en vaste kast met wasmachine-aansluiting. De badkamer is voorzien van bad, douche, dubbele wastafel en handdoekradiator. De slaapkamer aan de achterzijde heeft 2 ruime vaste kasten.

Bijzonderheden:
– C.v. ketel (Remeha Avanta 2016);
– Fraaie oorspronkelijke elementen;
– Lichte woning;
– Er is een intentieverklaring om de VvE te activeren, ook is er een inschrijving bij de KVK;
– De externe berging van 7m2 is te bereiken via een achterpad.

Lees meer Lees minder

Kenmerken

  • Status Beschikbaar
  • Bouwvorm Bestaande bouw
  • Vraagprijs € 369.000,- k.k.
  • Soort object Appartement
  • Woonoppervlakte 108 m²
  • Aantal kamers 3
  • Plaats Arnhem
  • Ligginskenmerken In woonwijk, in bosrijke omgeving
  • Bouwjaar 1935
  • Isolatie Hr glas
  • Aantal slaapkamers 2
  • Aantal badkamers 1
  • Badkamer voorzieningen Ligbad, douche, dubbele wastafel, wastafelmeubel
  • Verdiepingen 2
  • Voorzieningen Tv kabel, natuurlijke ventilatie
  • Daktype Plat dak
Alle kenmerken Lees minder
Over deze woning
Rob Kranen

Beëdigd NVM-makelaar en taxateur

Gratis zoekopdracht
Gratis zoekopdracht
Stel een vraag

In de buurt

      Weet wat je verkoopt,
      doe een gratis waardebepaling!

      Rob Kranen

      Beëdigd NVM-makelaar en taxateur

      Gratis zoekopdracht
      Gratis zoekopdracht
      Download de brochure Stel ons vraag
      9 .3 Beoordeling Lees meer
      Een afspraak plannen

      "*" geeft vereiste velden aan

      Stel een vraag

      Vul onderstaand formulier in

      "*" geeft vereiste velden aan