Beschikbaar
6824 av Arnhem

Molenbeekstraat 5

€ 650.000 k.k.
Over deze woning
Snel naar

In het kort

  • Perceel 136 m²
  • Woning 141 m²
  • Kamers 6
  • Energielabel C
Wat worden mijn maandlasten?
Hypotheekadvies

Omschrijving

We hebben weer een bijzondere woning te koop! Een verrassende en bijzonder ingedeelde, karakteristieke 2-onder-1-kapwoning uit 1890 met tal van fraaie oorspronkelijke details zoals marmeren schouwen, plafonds met ornamenten en de hoge raampartijen, maar ook met een fraaie, moderne keuken en een riante badkamer uit 2018.
De netto woonoppervlakte bedraagt 141 m², de perceeloppervlakte bedraagt 136 m². Aan de achterzijde bevindt zich een sfeervolle stadstuin met overdekt terras en een prima schuur met vliering. De CV-ketel is in 2020 vernieuwd, op het dak (vernieuwd 2023) bevinden zich een negental in 2023 geplaatste zonnepanelen. Het energielabel is C.

Alle dagelijkse voorzieningen zijn dichtbij. Het centrum van Arnhem is een tien minuten lopen of vijf minuten fietsen. Kinderdagverblijven, basisschool en diverse scholen voor het voortgezet onderwijs zijn op fietsafstand en er zijn tennisbanen en een fitnesscentrum in de buurt. Op korte afstand van belangrijke uitvalswegen, zoals de A12 of de A50, diverse bushaltes aan de Velperweg en twee NS stations, namelijk Arnhem Presikhaaf en Arnhem Velperpoort. Absolute ‘bonus’ is natuurlijk de op enkele minuten lopen gelegen Albert Heijn!

Indeling:

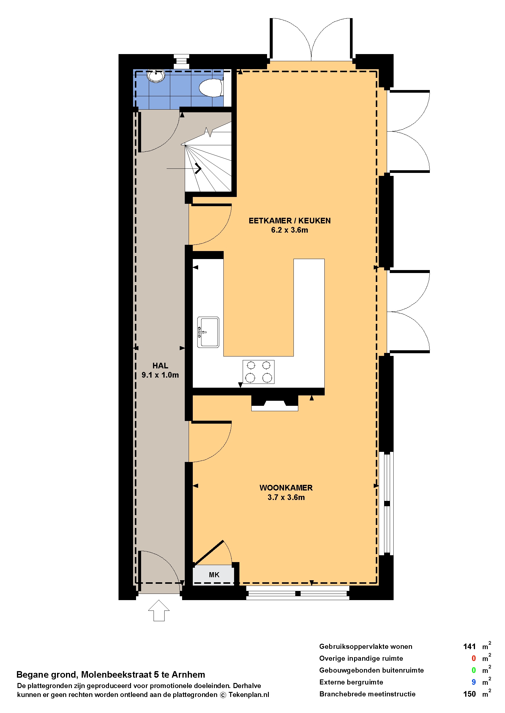
Begane grond: Entree/hal met toilet en trapopgang, woonkamer aan voorzijde met doorloop naar woonkeuken met moderne inrichting en complete inbouwapparatuur, en maar liefst een drietal dubbele openslaande deuren naar het zijpad en achtertuin.

Eerste verdieping: Op de eerste verdieping vind je aan de voorzijde een tweede woonkamer met een prachtig ornamentenplafond en haardpartij, een werkkamer is vanuit de woonkamer of de hal te bereiken. De ruime badkamer (12 m²) beschikt over een inloop(stort)douche, dubbele wastafel en tweede toilet. De wasmachine en droger plaats je in een aparte kast op de overloop. Vaste trap naar….:

Tweede verdieping: Overloop met toegang tot drie ruime slaapkamers.

Bijzonderheden:

– Netto woonoppervlakte 141 m²;
– Perceeloppervlakte 136 m²;
– Veel karakteristieke elementen;
– Luxe en ruime badkamer 2018;
– Moderne keuken met complete inbouwapparatuur;
– Vloerverwarming begane grond;
– Rustige ligging;
– Verrassende, speelse indeling;
– 9 zonnepanelen 2023;
– CV-ketel HR 2020.

Lees meer Lees minder

Kenmerken

  • Status Beschikbaar
  • Bouwvorm Bestaande bouw
  • Vraagprijs € 650.000,- k.k.
  • Soort object Woonhuis
  • Perceeloppervlakte 136 m²
  • Woonoppervlakte 141 m²
  • Aantal kamers 6
  • Plaats Arnhem
  • Ligginskenmerken Aan rustige weg, in woonwijk, in bosrijke omgeving
  • Bouwjaar 1938
  • Isolatie Dakisolatie, vloerisolatie
  • Aantal slaapkamers 3
  • Aantal badkamers 1
  • Badkamer voorzieningen Toilet, dubbele wastafel, wastafelmeubel, inloopdouche
  • Verdiepingen 3
  • Voorzieningen Tv kabel, natuurlijke ventilatie
  • Daktype Samengesteld dak
Alle kenmerken Lees minder
Over deze woning
Rob Kranen

Beëdigd NVM-makelaar en taxateur

Gratis zoekopdracht
Gratis zoekopdracht
Stel een vraag

In de buurt

      Weet wat je verkoopt,
      doe een gratis waardebepaling!

      Rob Kranen

      Beëdigd NVM-makelaar en taxateur

      Gratis zoekopdracht
      Gratis zoekopdracht
      Download de brochure Stel ons vraag
      9 .3 Beoordeling Lees meer
      Een afspraak plannen

      "*" geeft vereiste velden aan

      Stel een vraag

      Vul onderstaand formulier in

      "*" geeft vereiste velden aan