Beschikbaar
6824 ml Arnhem

Van Huevenstraat 39

€ 239.500 k.k.
Over deze woning
Snel naar

In het kort

  • Kamers 2
Wat worden mijn maandlasten?
Hypotheekadvies

Omschrijving

In de rustige en groene wijk “Wellenstein” bieden wij dit 2-kamerappartement aan. Dit hoekappartement is gelegen op de bovenste woonlaag en aan het einde van de galerij. Meer privacy vind je niet in dit complex!
In de onderbouw heb je je eigen berging voorzien van elektra.

Optioneel is er een garagebox beschikbaar van 16 m².
De vraagprijs van deze garage is € 27.500,- k.k.

De wijk Wellenstein staat bekend om haar groene en rustige karakter en ligt gunstig nabij bossen, Landgoed Bronbeek, Park Sacre Coeur, bushalte, station Presikhaaf, diverse uitvalswegen en op slechts 10 fietsminuten van de binnenstad van Arnhem. Ook het centrum van Velp en het overdekte winkelcentrum Presikhaaf is op korte afstand gelegen.

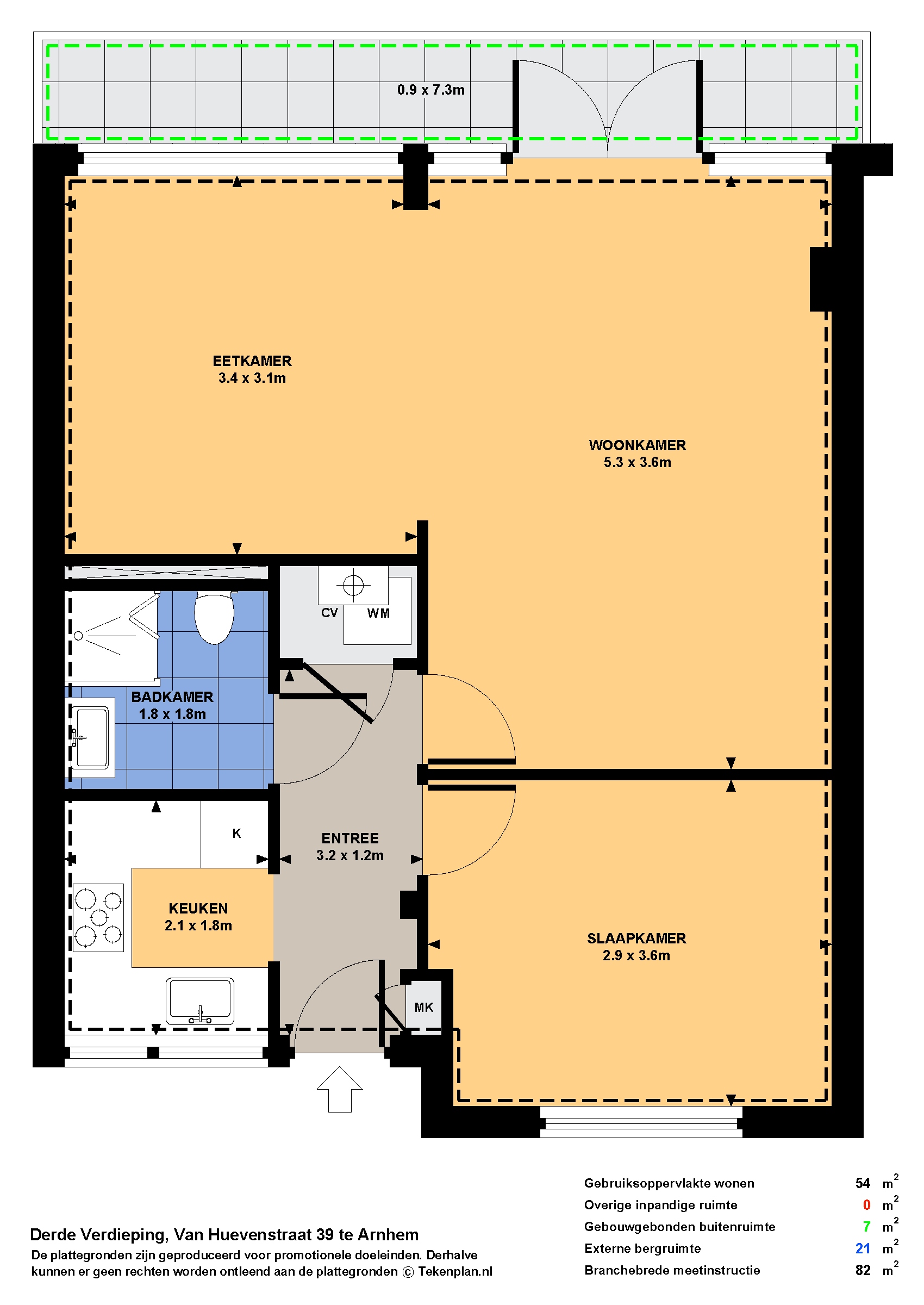
De woning heeft een woonoppervlakte van 54 m², is volledig voorzien van kunststof kozijnen met (behalve de voordeur) HR++ en dubbel glas.

Indeling:
Begane grond: Centrale afgesloten entree met intercom, liftinstallatie en trappenhuis.

Appartement: Entree/hal met meterkast en garderoberuimte, keuken voorzien van inbouwapparatuur, ruime badkamer voorzien van douche, wastafel en toilet, bergkast met aansluiting voor de wasmachine en opstelplaats voor de c.v. ketel, royale en lichte L-vormige woonkamer (voorheen 2 kamers) met vrij uitzicht en toegang tot het zonnige balkon, via de hal is de ruime slaapkamer bereikbaar.

Bijzonderheden:
– Bouwjaar omstreeks 1959;
– Actieve Vereniging van Eigenaars met reservefonds;
– Bijdrage Vereniging van Eigenaren € 194,- per maand;
– C.v. ketel Vaillant uit 2008;
– De keuken en badkamer zijn voorzien van vloerverwarming;
– Aanvaarding kan op korte termijn.

Lees meer Lees minder

Kenmerken

  • Status Beschikbaar
  • Bouwvorm Bestaande bouw
  • Vraagprijs € 239.500,- k.k.
  • Soort object Appartement
  • Woonoppervlakte 54 m²
  • Aantal kamers 2
  • Plaats Arnhem
  • Ligginskenmerken Aan rustige weg, in woonwijk, vrij uitzicht, beschutte ligging
  • Bouwjaar 1959
  • Isolatie Dakisolatie, dubbel glas
  • Aantal slaapkamers 1
  • Aantal badkamers 1
  • Badkamer voorzieningen Toilet, douche, wastafel
  • Verdiepingen 1
  • Voorzieningen Lift
  • Daktype Plat dak
Alle kenmerken Lees minder
Over deze woning
Rob Kranen

Beëdigd NVM-makelaar en taxateur

Gratis zoekopdracht
Gratis zoekopdracht
Stel een vraag

In de buurt

      Weet wat je verkoopt,
      doe een gratis waardebepaling!

      Rob Kranen

      Beëdigd NVM-makelaar en taxateur

      Gratis zoekopdracht
      Gratis zoekopdracht
      Download de brochure Stel ons vraag
      9 .3 Beoordeling Lees meer
      Een afspraak plannen

      "*" geeft vereiste velden aan

      Stel een vraag

      Vul onderstaand formulier in

      "*" geeft vereiste velden aan