Beschikbaar
6824 hh Arnhem

Velperweg 97

€ 1.495.000 k.k.
Over deze woning
Snel naar

In het kort

  • Perceel 585 m²
  • Woning 382 m²
  • Kamers 9
  • Energielabel C
Wat worden mijn maandlasten?
Hypotheekadvies

Omschrijving

Royaal wonen aan de Velperweg:

Een combinatie van grandeur en modern gezinscomfort. Deze uitstekend onderhouden halfvrijstaande stadsvilla uit 1913 is tussen 2014 en 2021 volledig gerenoveerd, het resultaat is een ultieme setting voor een riant gezinsleven op een absolute toplocatie. Gelegen aan het mooiste deel van de Velperweg bevindt u zich hier op loopafstand van zowel Park Angerenstein als het Arnhems stadscentrum.

Met een woonoppervlakte van maar liefst 382 m² biedt deze villa een ongekende ruimte, verdeeld over drie volledige woonlagen en een zeer ruim souterrain. De woning beschikt over zeven royale slaapkamers, een luxe keuken en bijkeuken en hoogwaardig sanitair. Authentieke details zoals de marmeren lambriseringen, glas-in-loodramen en een statige bordestrap met ambachtelijk houtsnijwerk geven het huis zijn unieke karakter en sfeer.

Aan de achterzijde geniet u van een fraai aangelegde tuin die veel privacy biedt. De woning beschikt over een ruime garage en een oprit met parkeergelegenheid voor meerdere auto’s. De ligging is ideaal: Station Velperpoort, diverse speciaalzaken (waaronder een bakker en een Albert Heijn) en de belangrijkste uitvalswegen zijn binnen enkele minuten bereikbaar.

De onlangs vernieuwde Velperweg biedt een uiterst prettige woonlocatie, waar rust, karakteristieke bebouwing en een rijke historie samenkomen. De ‘Renaissance van de Velperweg’ is een grootschalig herinrichtingsproject in Arnhem geweest, afgerond in 2025, dat de weg heeft omgevormd tot een groene, veilige boulevard. Het project heeft historische zichtlijnen hersteld, beken teruggebracht en de fietsvoorzieningen verbeterd, waardoor de Velperweg haar oorspronkelijke statige karakter heeft terug gekregen.

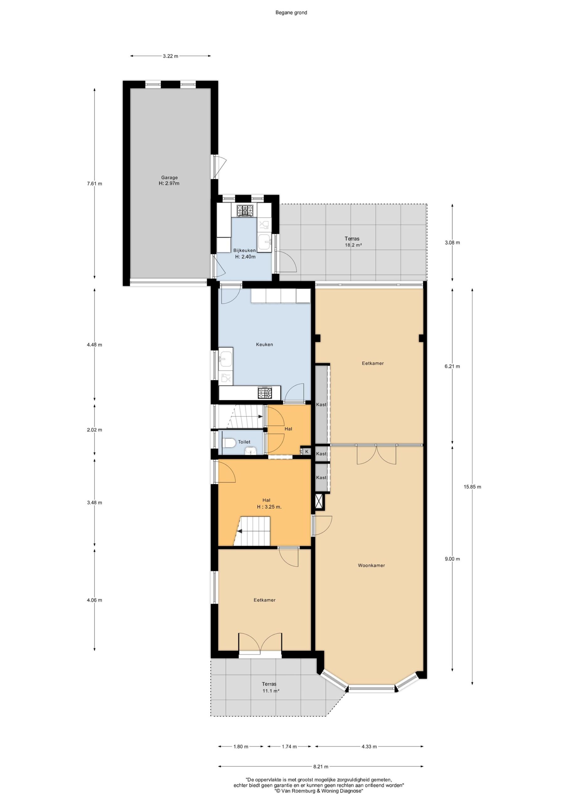
Indeling:

Souterrain: Licht en multifunctioneel Dit ruime souterrain (57 m²) is verdeeld in vier compartimenten met een prima stahoogte (ca. 2,25 m). Dankzij meerdere koekoeken geniet u hier van invallend daglicht, wat de ruimtes uitermate geschikt maakt als hobbyruimte, wijnkelder of extra berging.

Begane grond: Ruimte voor samenzijn Bij binnenkomst ervaart u direct de grandeur van de woning. De ontvangsthal is prachtig afgewerkt met marmeren lambrisering, een hoogwaardige natuurstenen vloer met comfortabele vloerverwarming en een statige bordestrap voorzien van authentiek houtsnijwerk. De riante living en-suite met een prachtige onderhoudsvrije pvc vloer wordt gekenmerkt door een glazen scheidingswand met openslaande deuren en een op maat gemaakte luxe kastenwand. De moderne woonkeuken met vloerverwarming is een droom voor elke thuiskok, uitgerust met hoogwaardige inbouwapparatuur zoals keramische kookplaat, koffiemachine, stoomoven, combimagnetron, koel-/vriescombinatie en vaatwasmachine.

Praktisch gemak is gewaarborgd door de aangrenzende bijkeuken (voorzien van een 6-pits gasfornuis en extra vaatwasser, koel-vriescombinatie en magnetron) in identieke stijl en kwaliteit uitgevoerd, waardoor beide ruimtes een harmonieus geheel vormen. Uniek is de directe verbinding met de buitenruimte: zowel de bijkeuken als de geïsoleerde en verwarmde garage bieden direct toegang tot de heerlijke tuin.
Vanuit de hal bereikt u tevens de werk/studeerkamer aan de voorzijde met eveneens vloerverwarming. Dankzij de openslaande deuren naar het terras geniet deze ruimte een directe verbinding met buiten, wat het tot een uiterst representatieve plek maakt voor werken of praktijk aan huis.

De toiletruimte in de hal is stijlvol uitgevoerd met hoogwaardig keramisch marmer, een zelfde natuurstenen vloer, een wandcloset en een modern fonteinmeubel.

Eerste verdieping: Rust en luxe De bordestrap, verlicht door prachtige glas-in-lood raampartijen, leidt naar de eerste etage. De overloop met pantry biedt toegang tot vier ruime slaapkamers, waaronder een kamer met erker en een kamer met marmeren schouw en een ruim balkon met zicht op de tuin. De luxe badkamer met vloerverwarming is een toonbeeld van design, voorzien van een exclusief breed wastafelblok met twee kranen, een inloopdouche en een tweede toilet.

Tweede verdieping: Volwaardige extra etage De bordestrap brengt u naar de tweede verdieping met een vijfde slaapkamer met dakkapel en Frans balkon en een indrukwekkende zesde slaapkamer die de gehele diepte van het huis beslaat. Een extra badkamer is reeds voorbereid in de zevende (slaap)kamer, waardoor u deze volledig naar eigen wens en inzicht kunt voltooien. Er is tevens toegang tot de vliering met in het midden stahoogte.

Bijzonderheden:
– Bouwjaar: 1913. Renovatie in 2014 en in 2021;
– Bouwwijze: Traditioneel gebouwd, opgetrokken in stenen / spouw en pannen gedekt;
– Nieuwe goten, dakpannen en tengels;
– Goed onderhouden, nieuwe ramen op de tweede verdieping;
– Isolatie: geheel voorzien van dubbele beglazing;
– Vloerverwarming in de hal, keuken, werk/studeerkamer en badkamer;
– Nieuwe CV- ketel geplaatst in 2025;
– Netto woonoppervlakte: ca. 382 m²;
– Inhoud: ca. 1.700 m³;
– Perceeloppervlakte: 585 m²;
– Voorzien van een alarminstallatie en brandmelders;
– Aan de achterzijde een prachtige besloten tuin met veel beplanting en terrassen;
– Aan de voorzijde een ruime oprit voor meerdere auto’s op eigen terrein;
– Supermarkten (Albert Heijn en Jumbo) en bakker op korte afstand;
– Park Angerenstein op loopafstand;
– Centrum Arnhem op 5 fietsminuten evenals Concertgebouw Musis Sacrum;
– Absoluut een bezichtiging waard!

Lees meer Lees minder

Kenmerken

  • Status Beschikbaar
  • Bouwvorm Bestaande bouw
  • Vraagprijs € 1.495.000,- k.k.
  • Soort object Woonhuis
  • Perceeloppervlakte 585 m²
  • Woonoppervlakte 382 m²
  • Aantal kamers 9
  • Plaats Arnhem
  • Ligginskenmerken In woonwijk, beschutte ligging, in bosrijke omgeving
  • Bouwjaar 1913
  • Isolatie Dubbel glas, voorzetramen
  • Aantal slaapkamers 6
  • Aantal badkamers 1
  • Badkamer voorzieningen Toilet, dubbele wastafel, inloopdouche
  • Verdiepingen 5
  • Voorzieningen Tv kabel, natuurlijke ventilatie
  • Daktype Samengesteld dak
Alle kenmerken Lees minder
Over deze woning
Rob Kranen

Beëdigd NVM-makelaar en taxateur

Gratis zoekopdracht
Gratis zoekopdracht
Stel een vraag

In de buurt

      Weet wat je verkoopt,
      doe een gratis waardebepaling!

      Rob Kranen

      Beëdigd NVM-makelaar en taxateur

      Gratis zoekopdracht
      Gratis zoekopdracht
      Download de brochure Stel ons vraag
      9 .3 Beoordeling Lees meer
      Een afspraak plannen

      "*" geeft vereiste velden aan

      Stel een vraag

      Vul onderstaand formulier in

      "*" geeft vereiste velden aan