Beschikbaar
6824 nb Arnhem

Vondellaan 57

€ 595.000 k.k.
Over deze woning
Snel naar

In het kort

  • Perceel 200 m²
  • Woning 148 m²
  • Kamers 6
  • Energielabel D
Wat worden mijn maandlasten?
Hypotheekadvies

Omschrijving

In de geliefde wijk De Paasberg met een vrij uitzicht aan de voorzijde bieden wij deze sfeervolle, verrassend ruime hoekwoning uit 1953 met vrijstaande stenen garage aan.

De wijk De Paasberg is een heerlijke, vooroorlogse gezinswijk met een centrale ligging. Op steenworpafstand zijn er o.a. diverse scholen, landgoed Bronbeek, Park Sacre Coeur en het fraaie park Angerenstein.

De woning is voorzien van fraaie details, zoals de ronde ramen op zolder, paneeldeuren, origineel deurbeslag en het in het oog springende glas-in-lood-raam in de woonkamer. De woning staat op eigen grond en is keurig onderhouden. De woning heeft een energielabel D, geldig tot april 2036. Met kleine aanpassingen is er makkelijk een energielabel C te krijgen.
Het woonoppervlakte is 148 m², het perceel is 200 m² groot. Kortom, een ideale gezinswoning in een prachtige groene woonomgeving nabij het centrum van Arnhem!

Indeling woonhuis:
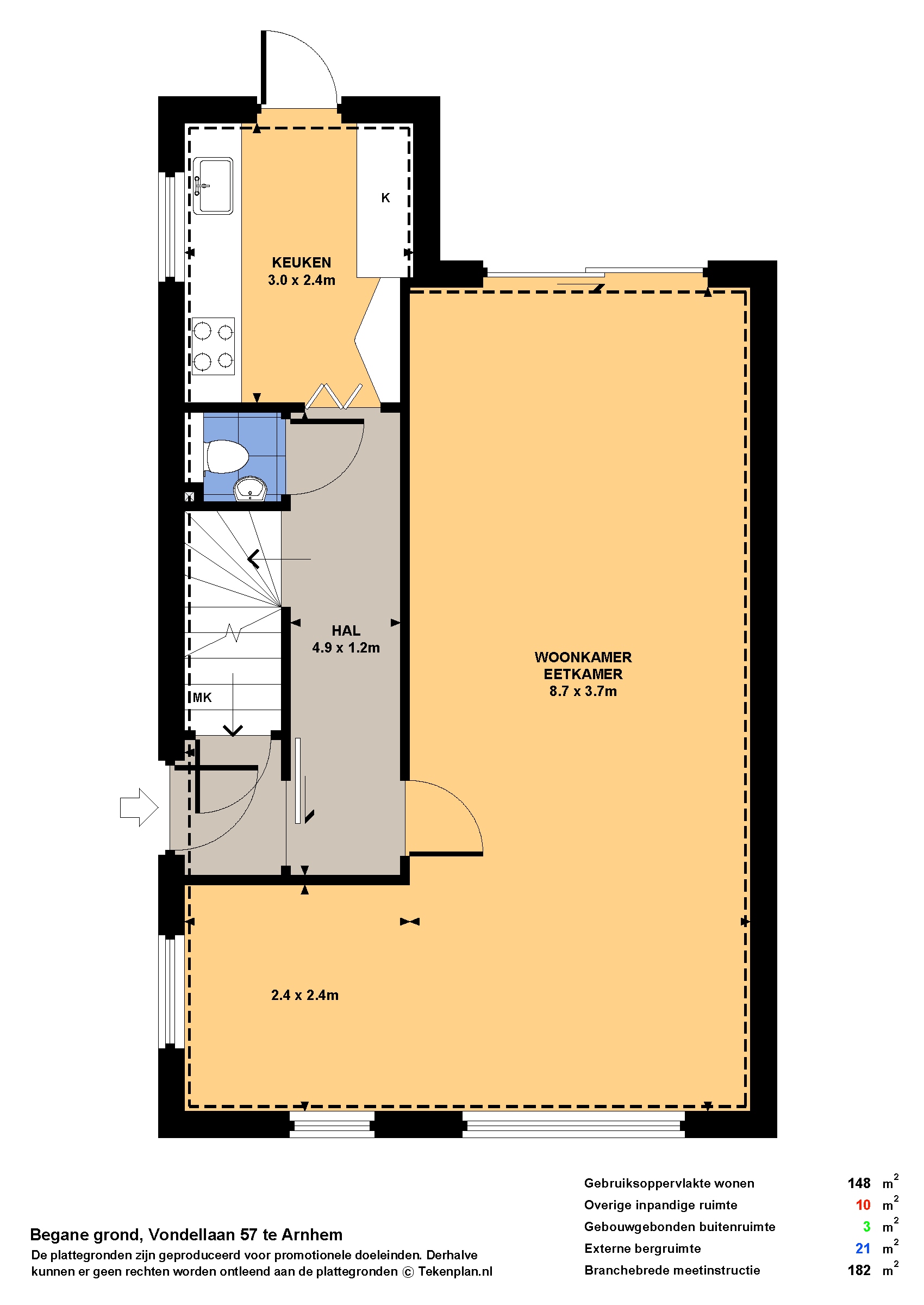
Entree, hal, toegang tot de kelderruimte op stahoogte.
Doorloop naar de royale L-vormige woonkamer met schuifpui naar de achtertuin. In de hal is het gemoderniseerde toilet met fonteintje te bereiken en de dichte keuken met toegang tot de achtertuin.

Op de 1e verdieping is er een lichte overloop met bergkast, 2 royale slaapkamers met inbouwkasten, een 3e slaapkamer en de gemoderniseerde badkamer voorzien van douchecabine, wastafel met ladekast, 2e toilet en deur naar het balkon.

Op de 2e verdieping biedt de voorzolder plek voor de c.v. ketel en heeft deze verdieping een voormalig 2e badkamer en een royale 4e slaapkamer met wastafel. Deze slaapkamer heeft veel bergruimte achter de knieschotten.

De achtertuin is gelegen op het Zuidwesten en geeft toegang tot de vrijstaande stenen garage. Deze ruime garage (6×4 meter) voorzien van werkbank en smeerput en heeft een elektrische toegangsdeur vanaf de Vondellaan.

Bijzonderheden:
– Lichte woning!
– Remeha Avanta c.v. ketel (bouwjaar rond 2009);
– Voorzien van 16 zonnepanelen uit 2022 (eigendom);
– De woning is bijna geheel voorzien van dubbel glas;
– Fraaie, karakteristieke details.

Lees meer Lees minder

Kenmerken

  • Status Beschikbaar
  • Bouwvorm Bestaande bouw
  • Vraagprijs € 595.000,- k.k.
  • Soort object Woonhuis
  • Perceeloppervlakte 200 m²
  • Woonoppervlakte 148 m²
  • Aantal kamers 6
  • Plaats Arnhem
  • Ligginskenmerken Aan rustige weg, in woonwijk, beschutte ligging, in bosrijke omgeving
  • Bouwjaar 1953
  • Isolatie Dakisolatie, grotendeels dubbelglas
  • Aantal slaapkamers 4
  • Aantal badkamers 1
  • Badkamer voorzieningen Toilet, wastafel, wastafelmeubel, inloopdouche
  • Verdiepingen 4
  • Voorzieningen Tv kabel, natuurlijke ventilatie
  • Daktype Zadeldak
Alle kenmerken Lees minder
Over deze woning
Rob Kranen

Beëdigd NVM-makelaar en taxateur

Gratis zoekopdracht
Gratis zoekopdracht
Stel een vraag

In de buurt

      Weet wat je verkoopt,
      doe een gratis waardebepaling!

      Rob Kranen

      Beëdigd NVM-makelaar en taxateur

      Gratis zoekopdracht
      Gratis zoekopdracht
      Download de brochure Stel ons vraag
      9 .3 Beoordeling Lees meer
      Een afspraak plannen

      "*" geeft vereiste velden aan

      Stel een vraag

      Vul onderstaand formulier in

      "*" geeft vereiste velden aan